Australia

Contact Agent

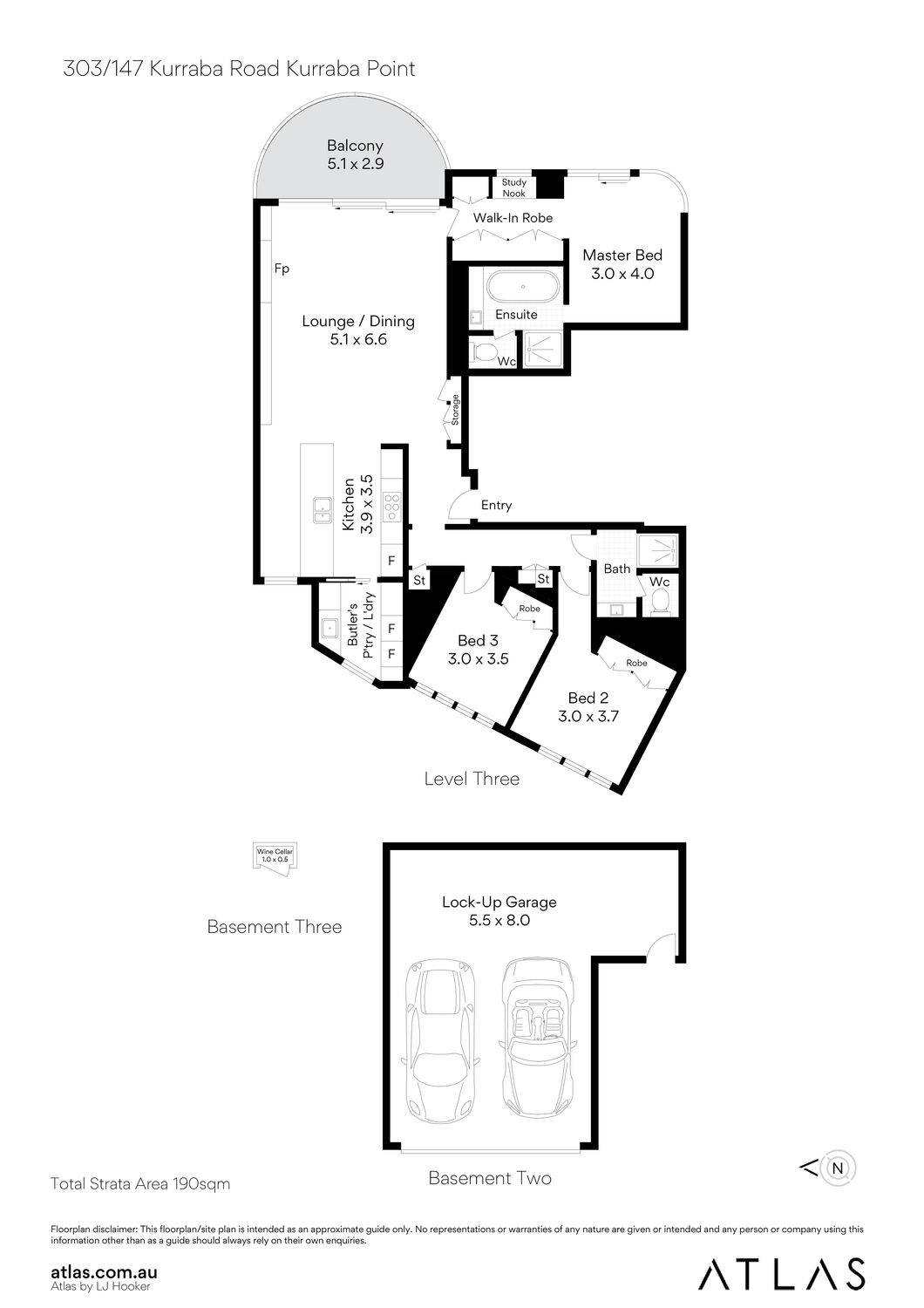
303/147 Kurraba Road, Kurraba Point, NSW 2089

# Location

Description

Luxurious brand new apartment with front row harbour views Why you'll love it: A statement in modern luxury, this distinctive brand new single level apartment with lift access from the garage fuses architectural finesse with a sophisticated aesthetic, state-of-the-art inclusions and magical harbour views. Its prestige location is steps to Kurraba Reserve and a stroll to Kurraba Point Ferry.

Key features: – In brand new landmark 'Kurraba Residences' with 24 homes – Open living zones transition to striking entertainers' terrace – Terrace with views and enclosed in curved sliding glass walls – Harbour views to Opera House, city, Fort Denison and bridge – Gas kitchen has marble island, Wolf and Subzero appliances – Divine bedrooms, walnut robes, private main wing with views – Exquisite bathrooms, ensuite has freestanding limestone tub – Ducted air, Ecosmart fireplace, smart home system and garage – Communal rooftop terrace with barbecue and incredible views – Shared wine room, concierge, car wash bay, three EV chargers – Architecture by SJB and landscaping by Dangar Barin Smith

Best suited for: Discerning downsizer buyers seeking a luxurious and private new home of bespoke design with iconic harbour views and single level living in a prestigious address.

View More #

Floor Plans

Location

  • Contact the agency

    To request an inspection

  • # Call # Email

Bo Zhang

Agent Name

Priscilla Ouvrier

Agent Name

# Report Listing

Looking for a property?

  • Top listings
  • Investment
  • Development
  • Personal home
  • Price reports
  • Suburb reports

Do you own a property?

  • Place a free listing
  • Services for private advertisers
  • Guide to selling your home
  • Insurance
  • Improve the photos of your listing
  • Value your property for free

Are you a real estate proffesional?

  • Publish your agencies properties
  • Already a client? Log into your account
  • Advertising on Kooie
  • Kooie data technology for property insights
  • Real Estate courses